Default sidemenu image
Search

Leave a Message

Thank you for your message. We will be in touch with you shortly.

Explore Our Properties

Property Description

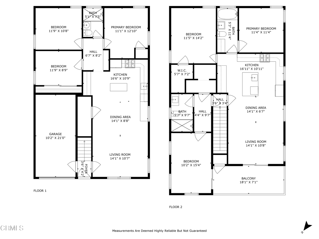
Discover coastal living at its finest with this fully renovated legal duplex in the heart of Silver Strand Beach, a laid-back surfside community located just north of Malibu and south of Ventura. This exceptional property offers two beautifully updated units, perfect for multi-generational living, rental income, or a combination of both. The first unit features 2 bedrooms, 1 bathroom, and a flexible bonus room that can serve as a third bedroom or home office. The upstairs unit offers 3 bedrooms, 2 bathrooms, a private deck perfect for relaxing or entertaining, and a cozy electric fireplace for added comfort. Both units have been thoughtfully upgraded with brand new cabinets, new flooring, new appliances, and a new tankless water heater, making this a truly turnkey opportunity. The property also includes an attached one-car garage with laundry hookups, offering added convenience for both units. The exterior has been freshly repainted, the roof was replaced in 2012, and the newly paved, oversized driveway provides ample off-street parking. Additional upgrades include modern LED lighting throughout for energy efficiency. Just a short stroll from the sand, this home offers the best of Southern California beach living--quiet, uncrowded beaches, excellent surf, and a close-knit community feel. Live in one unit and rent out the other, or create the ideal setup for extended family--this is a rare chance to own a move-in-ready duplex in one of SoCal's most desirable coastal neighborhoods.

Overview

Property Status
Sold
Lot Size
2,450 Sq.Ft.
MLS ID
V1-29958
Property Type
Multi-Family
Year Built
1975

Features & Amenities

View Description
None
Stories
2
Garage Spaces
1.0
Water Source
Public
Pool
None
Lot Features
Sprinklers None
Heat Type
Wall Furnace
Air Conditioning
None
Laundry Room
In Garage
Fireplace
None
Appliances
Gas Oven, Gas Water Heater, Refrigerator, Range Hood
Other Interior Features
Bedroom on Main Level
Sewer
Public Sewer
Security Features
Carbon Monoxide Detector(s), Smoke Detector(s)
Sales Price
$1,440,000

Downloads

152 Los Angeles Avenue

Schedule a Tour

I would love to help you see this beautiful home! As a full-service brokerage, we can help you tour. Please submit an offer, and answer questions about the buying process.

Thank you

for your interest in 152 Los Angeles Avenue, Oxnard, CA 93035

152 Los Angeles Avenue
Navigate

Follow Us On Instagram